(11) 94585-2484 (11) 94869-3109 atendimento@casadois.net.br

 

IMÓVEL

REFERÊNCIA: AP0825024
REFERÊNCIA: AP0825024

Cobertura reformada, piscina, churrasqueira

Cobertura - Residencial - Reformado

3 1 suítes
3
2
2
VENDA $1,390,000.00
WhatsApp
Atendimento Pelo WhatsApp

Descrição do Imóvel

Construído em 1978, oferece apartamentos espaçosos, com 121 m², ideal para famílias ou profissionais que buscam um lar aconchegante, esses imóveis representam uma oportunidade valiosa no mercado.

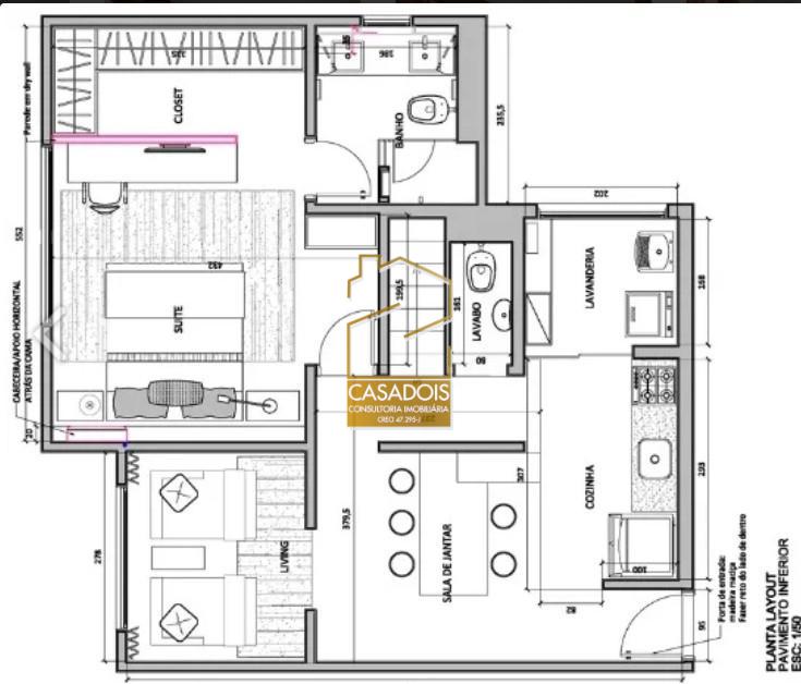
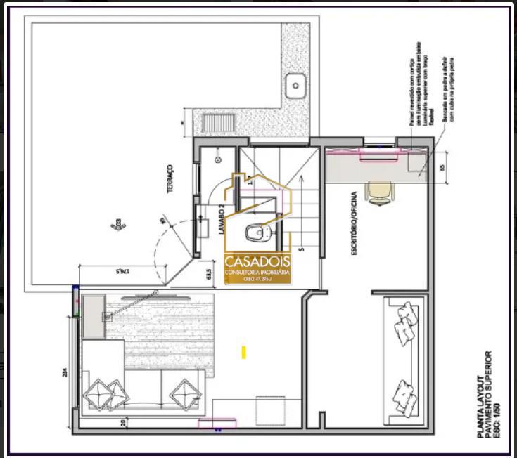
Cobertura Duplex, com 121m². com 3 quartos, sendo 1 suíte, 2 banheiros, 1 lavabo, 2 escritórios. 1° Piso: Suíte com ar condicionado  frio/quente, porta e janela anti-ruído, closet, banheiro com 2 cubas, quarto com ar condicionado, porta e janela anti-ruídos, cozinha americana, lavabo, área de serviço, 2° Piso: Sala/Escritório, ar condicionado, lareira à lenha, banheiro com box de vidro, terraço com churrasqueira, Home Theatre, Oficina, Escritório, ar condicionado, portas e janela anti-ruído.

Proporciona fácil acesso a diversas opções de lazer, comércio e transporte público, garantindo uma experiência de vida prática e dinâmica.

Informações Adicionais

  • Área Privativa 121.00 (m²)
  • Área Total 121.00 (m²)
  • Valor Condomínio $1,150.00
  • Aceita Financiar Sim
  • Aceita FGTS Sim
  • Aceita Permuta Não

Localização

  • Região Campo Belo
  • Endereço Consulte
  • Número Consulte
  • Complemento Consulte
  • Cidade São Paulo - SP
  • Bairro Campo Belo

Características do Imóvel

  • Área de Serviço
  • Armário na Cozinha
  • Armário no Quarto
  • Armários Projetados
  • Box no Banheiro
  • Churrasqueira
  • Cobertura
  • Condomínio Fechado
  • Corredor
  • Cozinha
  • Dep. de Empregada
  • Edícula
  • Energia Elétrica
  • Escritório
  • Esquadria
  • Iluminação Pública
  • Internet
  • Lavabo
  • Piscina
  • Piso Frio
  • Preparado Para Deficientes
  • Quarto (Depósito)
  • Rede de Agua
  • Rede TV a Cabo
  • Rua Asfaltada
  • Sacada
  • Sala de Estar
  • Sala de Jantar
  • Sala de Visita
  • Varanda
  • WC Serviço

Características do Condomínio

  • Academia (Condomínio)
  • Acessível Para Deficientes
  • Área Verde
  • Churrasqueira (Condomínio)
  • Elevador
  • Espaço Gourmet
  • Guarita
  • Piscina (Condomínio)
  • Playground
  • Portão Eletrônico
  • Portaria 24h
  • Rede de Esgoto (Condomínio)
  • Rua Asfaltada (Condomínio)
  • Salão de Festas

Tem Por Perto do Imóvel

  • Banco
  • Barzinhos
  • Escola 1º Grau
  • Escola 2º Grau
  • Farmácia
  • Feiras
  • Hospital
  • Locadora
  • Lojas
  • Mercado
  • Panificadora
  • Pizzaria
  • Ponto de Ônibus
  • Ponto de Taxi
  • Posto de Gasolina
  • Praça/Parque
  • Pré-escola
  • Shopping

ENTRAR EM CONTATO

Você não deve preencher esse campo
Você não deve modificar esse campo
Corretor Responsável

Silvia Aparecida Di Giovanni

(11) 97951-9805

CRECI: 073194-F/SP

Atendimento

Entre em contato agora!

(11) 94585-2484

CRECI: 47.295-J/SP

Gerenciar Favoritos
Nenhum imóvel adicionado!